- Úvod
- Montážní materiál
- Závěsné prvky
- Montážní konzole
- Montážní konzole lištová 38/40x770 (2,00mm) + krytka
Montážní konzole lištová 38/40x770 (2,00mm) + krytka
- TOP produkt

- TOP produkt
- TOP produkt
- Kompletní specifikace
- Komentáře 0
- Související zboží3
Montážní konzole lištová 38/40x770 (2,00mm) + krytkaSkladem545,00 Kč/ ks450,41 Kč bez DPH
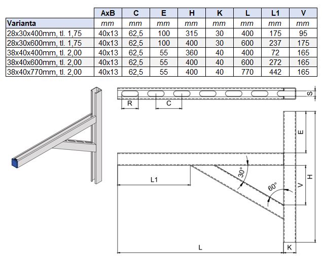
Montážní konzole lištová (Montážní konzole s podpěrou)
Montážní konzole lištová slouží k upevňování potrubí na stěnu. Dvojici konzol lze využít také pro
upevnění různých typů agregátů, např. klimatizačních jednotek, zdrojů nepřetržitého napájení, regálových nebo podstřešních konstrukcí apod. Konzole jsou dodávány včetně plastové krycí
čepičky.











